コンセプト賃貸住宅

建物名CONCEPT BASE宮の森 C棟

所在地
札幌市中央区宮の森4条10丁目
構造
木造2階建
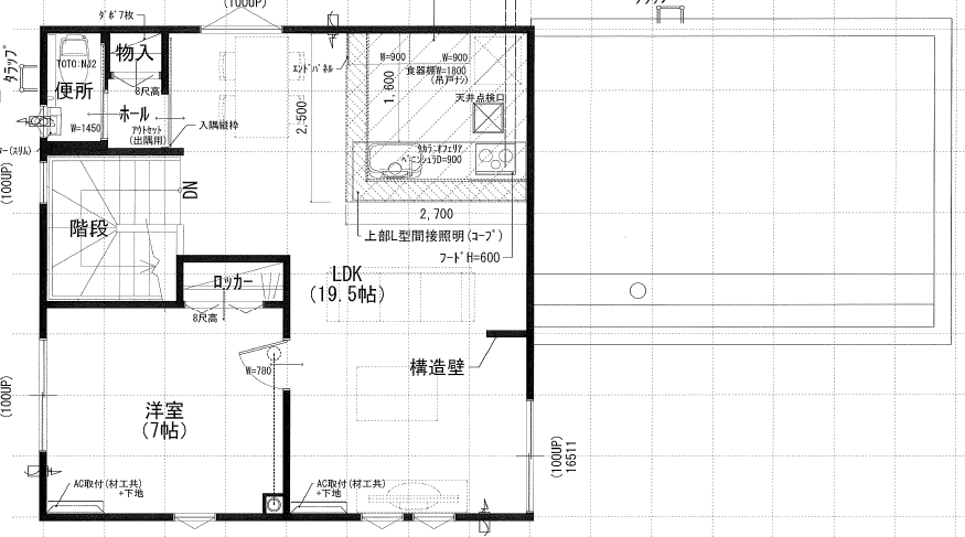
間取り
3LDK
床面積
1F  24.03坪
2F  16.00坪
延床 40.03坪

図面

アピールポイント

本格ゴルフシミュレーション(GOLFZON TWOVISION)を備えた賃貸住宅です。天候に左右されず、好きな時間に練習ができる“自分だけのゴルフ空間”を住まいの中に実現しました。本機は米LPGA公認の高性能シミュレーターで、精密な弾道やスイングデータ解析に対応。プロのレッスン現場でも使用されるレベルの機能を備えており、効率的な上達をサポートします。セルフ練習はもちろん、レッスン用途としても十分なハイスペックモデルです。ゴルフ好きの夢を叶えるワンランク上の暮らしを是非ともご体感ください。
もちろん住宅設備も高級仕様。トリプルガラス樹脂窓の断熱性と全室オール床暖房で、寒い北海道の冬も快適にお過ごしいただけます。
玄関横の手洗いは、帰宅後すぐに手洗いができ、小さなお子さまや来客時にも便利な、安心と快適さを両立した暮らしを実現します。
キッチンには、食洗器はもちろんタッチレス水栓で日々の家事を快適にしてくれます。トイレは1階と2階に設置しています。

物件資料